2008年から建築設備CAD「Rebro」を活用し、設備BIMモデル構築や施工図作成に特化した実務支援を行っています。複合施設・オフィス・ホテル・工場など多様なプロジェクトに対応し、Rebroスキルアップ研修や企業向けカスタマイズ講習を通じて、作図効率とBIM活用力を飛躍的に向上させます。 Rebroの操作だけでなく、BIMの本質的な理解を重視した研修で、現場で使える知識と技術を提供。Rebro導入相談からBIMデータ構築支援まで、設備図の未来を共に創ります。
NYKシステムズ認定正規販売代理店並びにサポートリンク登録

090-3675-0666

06-6335-9600

電話に出れない場合がございますので、

初めての方はこちらよりお願いします

大阪市北区菅原町5番3号大宝中之島ビル1006

登録番号: T3120001192549

  1. 業務内容
  2. レブロネクストがお勧めするRebroの機能
  3. 運用テクニック
  4. 2.BIM(3次元データ活用)に特化している

2.BIM(3次元データ活用)に特化している

図面というものの標準が変わってきている

BIMに対応可能なCADという定義は、意匠・構造・設備と各分野によって違いますが、設備CADでは、3次元パーツを作る機能・情報を持った状態で受け渡しできる機能(IFC/部材情報/CGシーン)・情報を入力できる機能、階層にできる機能が最低限求められる定義だと思います。

意匠の3次元が主となることでBIMと言われますが、Rebroだけで壁や梁なども作図し、干渉検査・拾い・検索・管理などを使い設備BIMができます。図面というものの標準が3次元データを活用するに変わってきています。

クリップで自由自在の表示範囲設定

階高の高い工場や中間階のある建物にも強い表示範囲を自由に設定できるクリップ機能

設備は空間内に納めていく為、何層にも重なりあいます。階層ごとに表示することや、表示範囲高さを設定することが可能です 。画像例は、全体図よりキャットウォークでメンテを行う設備のみを表示(左)キャットウォークより上部の設備を表示(右)と用途にあった範囲が表示できます



クリップ機能のココがポイント

  • 切断面は自由に設定できる
  • 複数設定できる
  • 図面を分割、貼付けしないので整合性が保てる

製図者の目

図面ではなく模型を感じさせる機能の1つです。断面を作成する場合に使用するのが製図者としては主に使用します。このクリップが階層ごとに表示させたい場合に使用するだけでなく、施工図作成後も施工工程・施工範囲に合わせた範囲を表示することができます。足場高、メンテ確認などの場合もクリップは効果を発揮します。また、階層ごとに表示する場合は、空調・消火は天井内設備が主ですので階高で区切ることは可能ですが、衛生図の場合は、床下および天井配管も表示させなければシステムが把握出来ない場合があります。その際も詳細に高さを設定できる為、自由に用途に合わせた表示が可能です。


複数の人数でとりかかる時に便利な外部参照

Rebroの外部参照は、各フロアごとで作図しても原点を統一していると外部参照にするだけで、階層になったモデルが作成でき、

干渉検査や検索、系統管理など外部参照も対象に含むことができ、外部参照もIFCにできます



検索機能

検索機能を使用し、メーターの位置や系統の確認や部屋名の検索で場所をいち早く確認したり、水栓の検索で設計図の位置・数を確認したりと、

図面でチェックしていたことを検索機能を使用し効率をUPします。



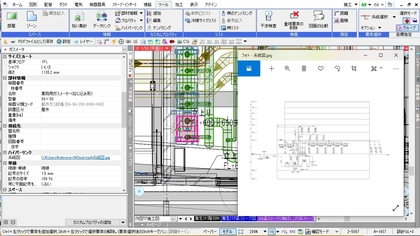
ハイパーリンク設定

施工要領や系統図などPDFや画像をハイパーリンクを設定できます。



3次元を活用に使えるRebroビューア

レブロビューアは、レブロ図面の閲覧・印刷ができる無償ビューアです。作図・編集はできませんが、BIMはCGで会話する時代になってきました。既に入力された3Dモデルの情報の抽出に利用できます。

例えば、拾い集計、系統管理、部屋ごとの情報、盤の管理範囲、干渉検査など、BIMモデルのチェックとして利用できますし、CGシーンは受け渡しができますので、製図者に指示することも可能です。